Sehr schöne Wohnung z.B. als Einstiegs- Kapitalanlage
Eckdaten
- Art Dachgeschosswohnung
- Lage 45279 essen
- Kaufpreis 125.000,00 €
- Wohnfläche ca. 48 m²
- Zimmer 2
- Kellerfläche ca. 5 m²
- Baujahr 1964
- Etagenzahl 3
- Etage 3
- Denkmalschutzobjekt nein
- Heizungsart Gas-Heizung
- Vermietet ja
- Zustand Modernisiert
- Immobilien-ID 579
Immobilie
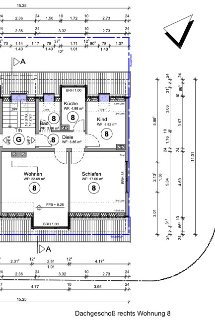
Die angebotene Immobilie ist eine moderne Dachgeschosswohnung mit einer Wohnfläche von ca. 50 m². Das Gebäude wurde im Jahr 1964 errichtet und verfügt über insgesamt drei Etagen. Die Wohnung befindet sich auf der dritten Etage und wurde zuletzt im Jahr 2025 modernisiert. Die Energieeffizienzklasse der Immobilie ist C. Eine Gas-Heizung sorgt für angenehme Wärme in den Räumen. Zusätzlich steht ein Keller zur Verfügung.
Die Dachgeschosswohnung verfügt über ein Schlafzimmer, ein Badezimmer, sowie ein Wohnzimmer. Insgesamt stehen zwei Zimmer zur Verfügung, die modern und ansprechend gestaltet sind. Durch die großen Fenster fällt viel Tageslicht in die Räumlichkeiten und sorgt für eine helle und freundliche Atmosphäre. Die Wohnung ist optimal geschnitten und bietet ausreichend Platz für Singles oder Paare.
Die Immobilie ist derzeit vermietet. Die moderne Ausstattung und der gut gepflegte Zustand des Gebäudes machen die Wohnung zu einer attraktiven Investitionsmöglichkeit. Die zentrale Lage und die gute Anbindung an öffentliche Verkehrsmittel sorgen für eine gute Infrastruktur. Insgesamt handelt es sich um eine ansprechende Dachgeschosswohnung mit zeitgemäßer Ausstattung und optimaler Raumaufteilung.
Lage
Die Dachgeschosswohnung befindet sich im Stadtteil Freisenbruch in Essen. Freisenburch ist ein ruhiges Wohnviertel im Süden von Essen, das durch seine grüne Umgebung und die Nähe zum Baldeneysee besticht. Die Umgebung bietet zahlreiche Möglichkeiten für Spaziergänge, Fahrradtouren und sportliche Aktivitäten. Einkaufsmöglichkeiten, Restaurants und öffentliche Verkehrsmittel sind ebenfalls gut erreichbar.
Essen ist eine lebendige Großstadt im Ruhrgebiet. Die Stadt hat eine lange Industriegeschichte, die heute noch in Teilen sichtbar ist, aber in den letzten Jahren hat sich Essen zu einem modernen Zentrum für Kultur, Bildung und Wirtschaft entwickelt. Zahlreiche kulturelle Einrichtungen, Universitäten und Unternehmen prägen das Stadtbild.
Die Region um Essen zeichnet sich durch ihre Vielfalt aus. Das Ruhrgebiet ist geprägt von Industriedenkmälern, grünen Naherholungsgebieten und einer lebendigen Kulturszene. Die Nähe zu Städten wie Dortmund, Bochum und Düsseldorf bietet zudem zahlreiche Möglichkeiten für Ausflüge und Freizeitaktivitäten. Die Dachgeschosswohnung im Haferfeld ist somit der ideale Ausgangspunkt, um die Vielfalt der Region zu entdecken.
Ausstattung
Die Immobilie verfügt über eine normale Qualität der Ausstattung.
Modernisiert wurden am Haus in diesem Jahr
Dämmung Fassade
Erneuerung Fenster und Haustüre
Erneuerung Wohnungseingangstüren
Erneuerung Gasheizung und Abgasrohr
Renovierung des Treppenhauses
RWA Anlage Rauchabzug im Treppenhaus
vor 2024 wurde modernisiert
Dämmung obere Geschoßdecke
Sonstiges
Neugierig ?
Dann vereinbaren Sie einen individuell auf Sie abgestimmten Besichtigungstermin mit uns gern per Email von Mo. – Fr. – 09.00 Uhr bis 18.00 Uhr.
Zuhause, Leben von Herzen!
Knoblauch-Immobilien weist darauf hin, dass uns alle in diesem Exposé enthaltenen Informationen und Unterlagen von dem Eigentümer zur Verfügung gestellt wurden und ca. Werte darstellen. Für die Richtigkeit oder Vollständigkeit kann Knoblauch Immobilien daher keine Gewähr übernehmen und haftet hierfür nicht.
Details genau zu erfahren ist auch für Knoblauch Immobilien nicht immer leicht. Wenn Sie mit Knoblauch Immobilien besichtigen, werden Sie gebeten, auf für Sie wichtige Dinge und auf die wesentlichen Maße, selbst zu achten. Dieses Angebot ist freibleibend und nur für Sie persönlich bestimmt. Irrtum und Zwischenverkauf vorbehalten.
Energieausweisangaben
- Enerigeausweistyp Verbrauchsausweis
- Energiekennwert 97 KWh(m²*a)
- Energieeffizienzklasse C
- Energieausweis erstellt am 30.08.2019
- Energieausweis gültig bis 29.08.2029
- Heizungsart Gas-Heizung
- Befeuerung / Energieträger Gas
Herzlichen Dank für Ihre Anfrage.
Wir werden diese so schnell wie möglich bearbeiten.
